Appartement 75015
- 1,090,000€
Description
VUE PANORAMIQUE SEINE & TOUR EIFFEL – COUP DE CŒUR ASSURÉ
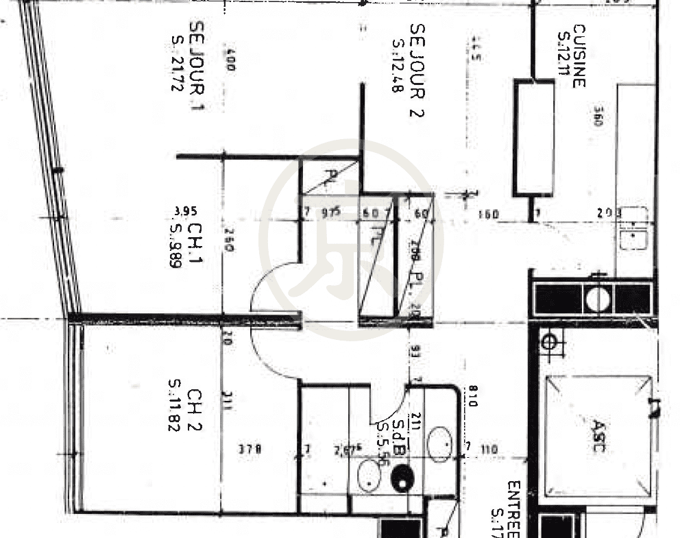
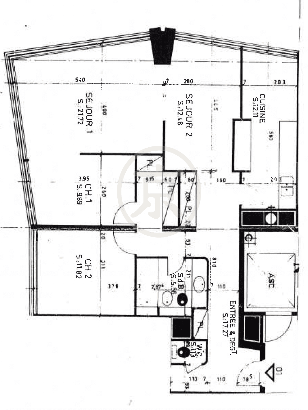
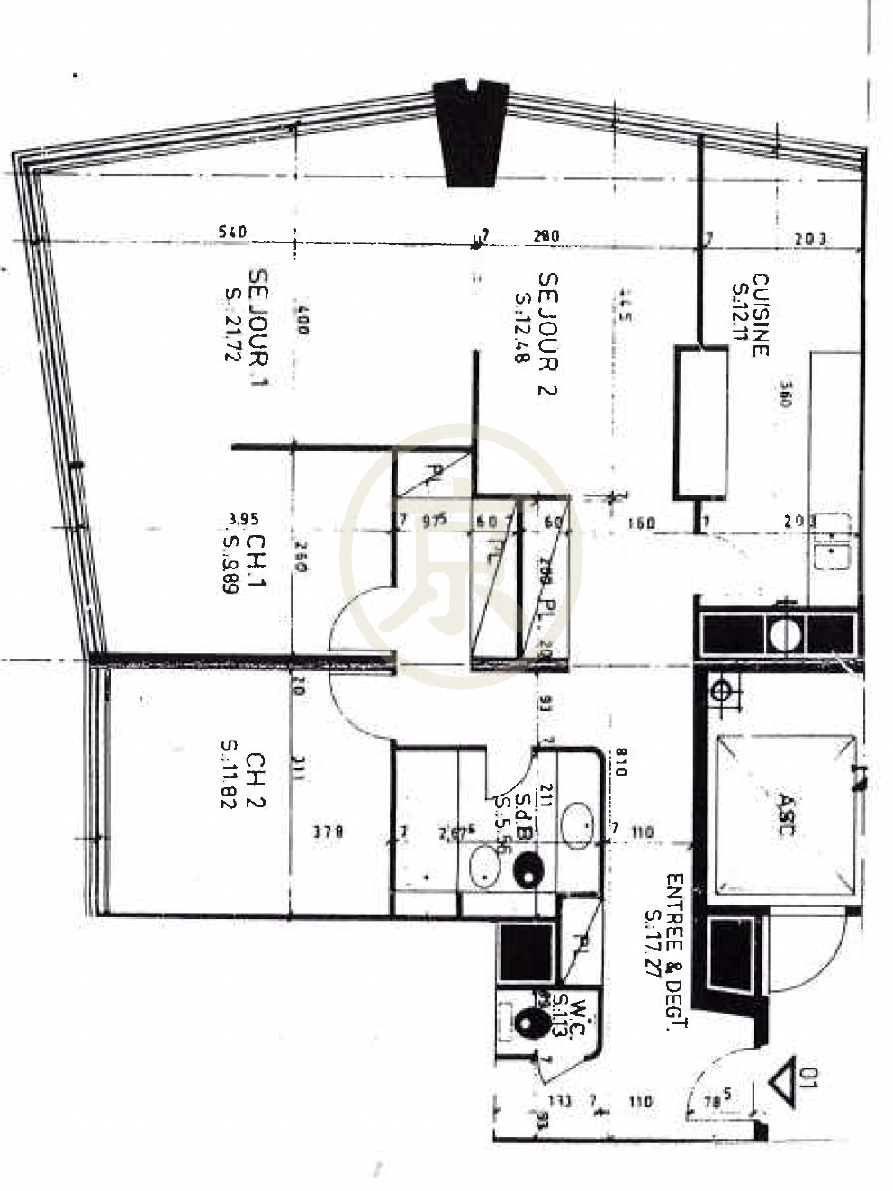
Paris XVe – 3/4 pièces – 95,46 m² Loi Carrez
Offrez-vous un panorama à couper le souffle au cœur du XVe arrondissement
En étage élevé, cet appartement d’angle dévoile une vue magistrale sur la Seine et la Tour Eiffel, embrassant également les toits de Paris, le Mont Valérien et la Statue de la Liberté
Details
Updated on April 15, 2026 at 6:24 pm-
Property ID 2051
-
Price 1,090,000€
-
Property surface 95 m²
-
Bedrooms 2
-
Rooms 4
-
Bathroom 1
-
Property type Apartment
-
Property status To Sell
Mortgage calculator
Monthly
-
Advance payment
-
Montant du Prêt
-
Mensualité
-
Property tax
-
Insurance
-
Frais mensuelle




