Appartement 75015
- 1,090,000€
Description
VUE PANORAMIQUE SEINE & TOUR EIFFEL – COUP DE CŒUR ASSURÉ
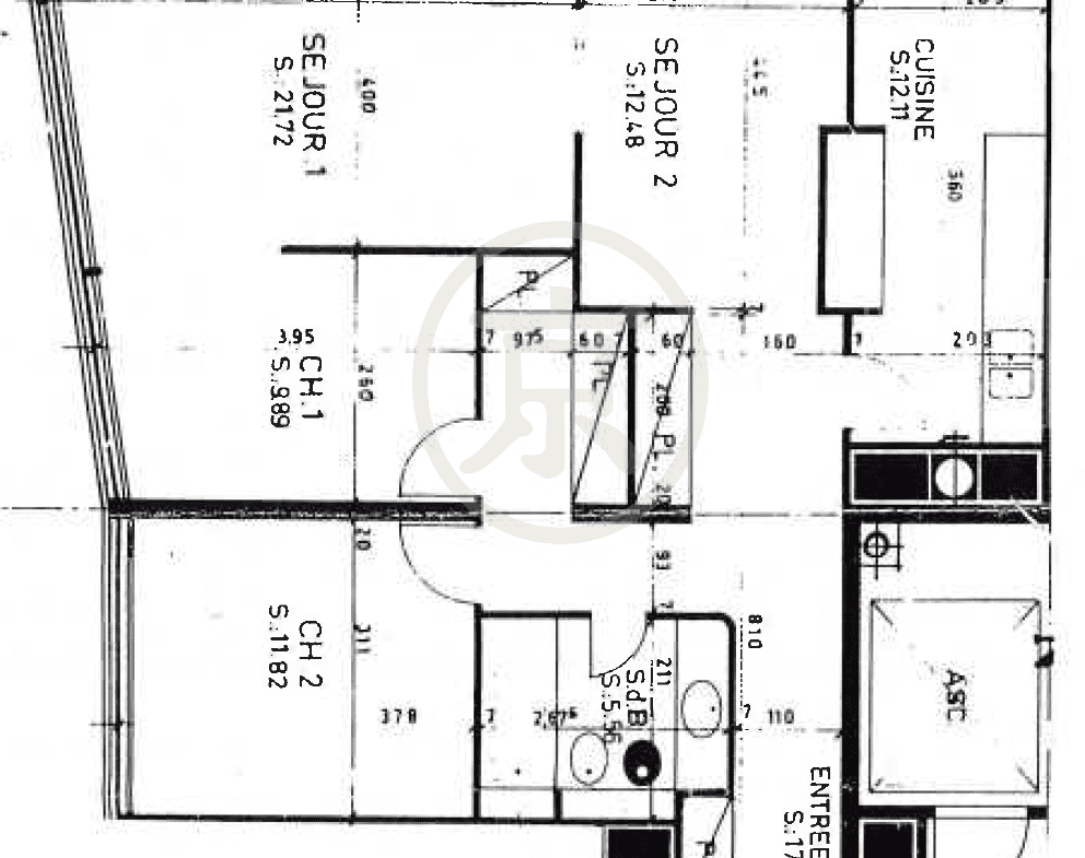
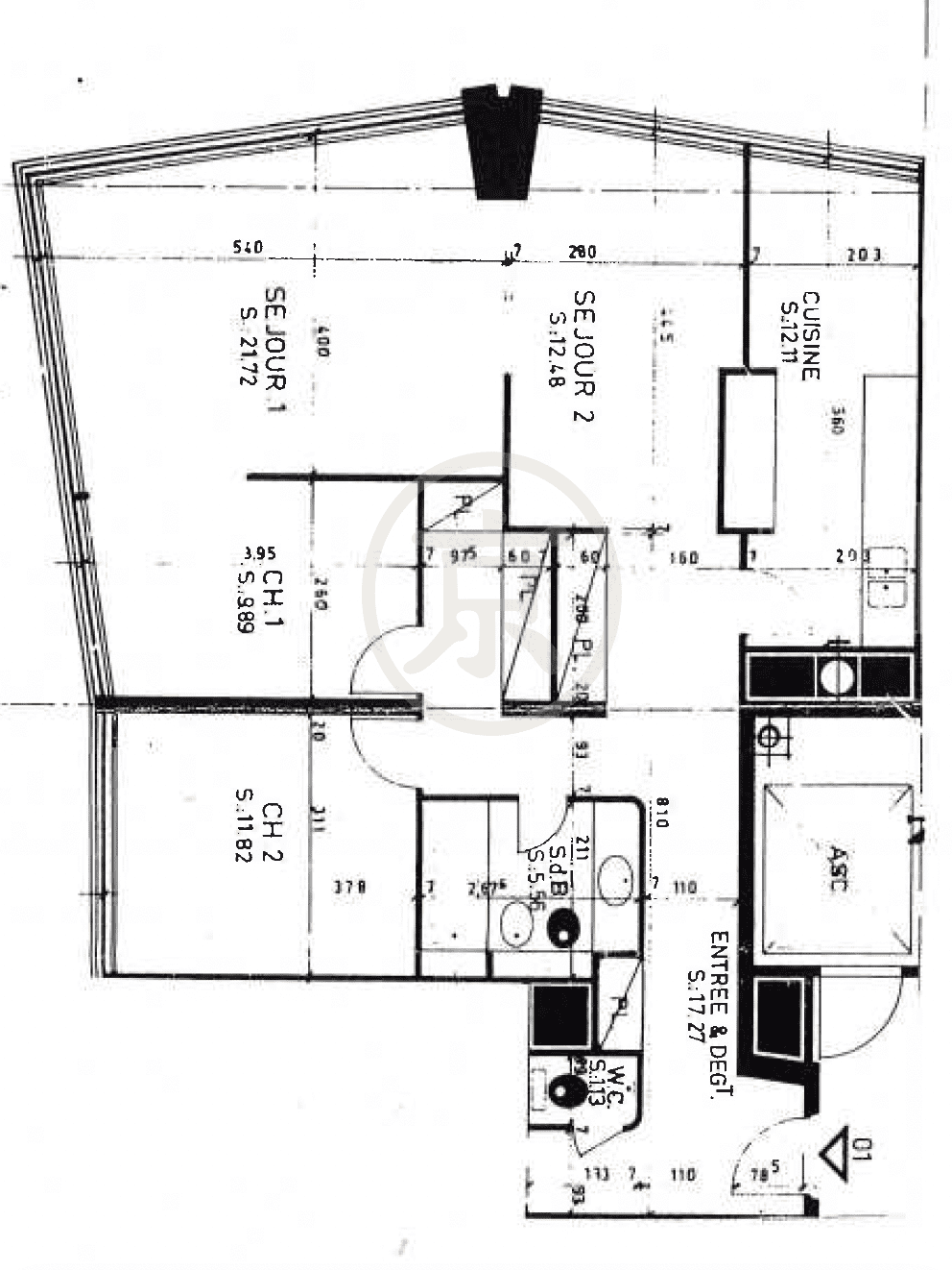
Paris XVe – 3/4 pièces – 95,46 m² Loi Carrez
Offrez-vous un panorama à couper le souffle au cœur du XVe arrondissement
En étage élevé, cet appartement d’angle dévoile une vue magistrale sur la Seine et la Tour Eiffel, embrassant également les toits de Paris, le Mont Valérien et la Statue de la Liberté
Détails
Mis à jour le avril 15, 2026 à 6:24 pm-
Identifiant du bien 2051
-
Prix 1,090,000€
-
Surface 95 m²
-
Chambres 2
-
Pièces 4
-
Salle de bain 1
-
Type de bien Appartement
-
Status Acheter
Simulateur de prêt immobilier
Mensuel
-
Acompte
-
Montant du Prêt
-
Mensualité
-
Taxe foncière
-
Assurance
-
Frais mensuelle




